Gewerbeobjekt Duisburg - 1.950€ | Angebot:9761909 Gewerbeobjekt Duisburg - 1.950€ | Angebot:9761909
Gewerbeobjekt Duisburg - 1.950€ | Angebot:9761909 Gewerbeobjekt Duisburg - 1.950€ | Angebot:9761909

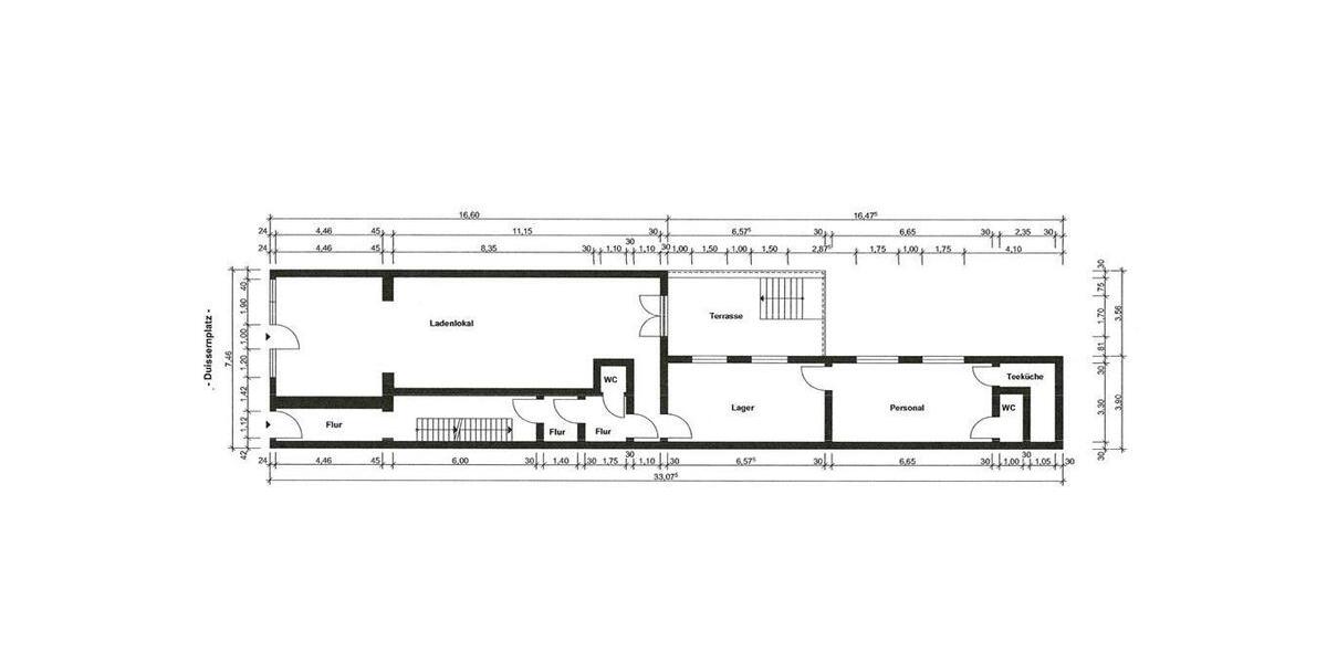
Gewerbe mit Potential - Direkt am Duissernplatz

Informationen zur Immobilie:
Ort
47051 Duisburg
Objektart
Gewerbeobjekt
Größe
ca. 150,00 m²
1.950 €
(zzgl. Nebenkosten)
Kaltmiete
Beschreibung:
Mehr zum Angebot Gewerbe mit Potential - Direkt am Duissernplatz:

# Objektbeschreibung
Das Gewerbe befindet sich im Erdgeschoss in einem Mehrfamilienhaus mit 3 Wohneinheiten. Das Objekt ist renovierungsbedürftig und wird ensprechend dem Nutzungskonzept des neuen Mieters in Abstimmung renoviert und umgebaut.... mehr erfahren
weitere Gewerbeobjekte
social facebook social youtube social instagram social tiktok

Copyright © 2000 - 2026 | 1A Infosysteme GmbH | Content by: 1A-Anzeigenmarkt.de 25.04.2026